El delegado de Medio Ambiente del Ayuntamiento de Chipiona, Sebastián Guzmán, ha informado que hoy se ha dado un nuevo paso para que sea realidad el centro de atención animal que el consistorio quiere ubicar en una parcela municipal de 2.500 metros situada en la zona rural del Abulagar. Ello será complementado posteriormente con la construcción de un alberque-refugio.
Guzmán ha precisado que para la financiación de las obras para la creación del centro de atención animal se cuenta con 100.000 euros del plan Dipu-Invierte de Diputación, así como con otros 100.000 euros de fondos propios con cargo al patrimonio municipal.
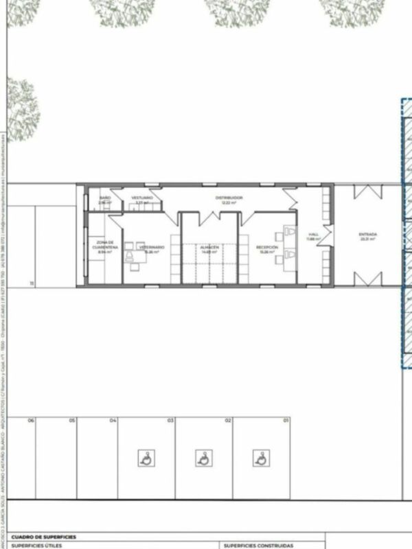
El proyecto aprobado hoy para el centro de atención animal incluye la explanación para aparcamiento, espacio de recepción, almacén, zona veterinaria, vestuario, área de cuarentena, baño y entrada.
